Maison Bordeaux Bordeaux France By Rem Koolhaas

Maison Bordeaux Bordeaux France By Rem Koolhaas

Image Result For Maison Bordeaux Oma Interior Architettura Case

Image Result For Maison Bordeaux Oma Interior Architettura Case

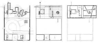
Maison A Bordeaux Analysis Floor Plans Architecture Bordeaux

Maison A Bordeaux Analysis Floor Plans Architecture Bordeaux

Ad Classics Maison Bordeaux Oma Architecture Creative Architecture Rem Koolhaas

Ad Classics Maison Bordeaux Oma Architecture Creative Architecture Rem Koolhaas

Gallery Of Ad Classics Maison Bordeaux Oma 1 Rem Koolhaas Architecture Modern Architecture

Gallery Of Ad Classics Maison Bordeaux Oma 1 Rem Koolhaas Architecture Modern Architecture

Ad Classics Maison Bordeaux Oma Architecture Rem Koolhaas Architecture Photography

Ad Classics Maison Bordeaux Oma Architecture Rem Koolhaas Architecture Photography

Ad Classics Maison Bordeaux Oma Architecture Rem Koolhaas Architecture Photography >

Luis Martin Medina Arch 3501 Maison A Bordeaux Oma

Luis Martin Medina Arch 3501 Maison A Bordeaux Oma

Maison Aƒa Bordeaux Rem Koolhaas Architecture Architect

Maison Aƒa Bordeaux Rem Koolhaas Architecture Architect

Maison A Bordeaux Bordeaux France Decoration As Composition Architectuur Deconstructivisme Architecten

Maison A Bordeaux Bordeaux France Decoration As Composition Architectuur Deconstructivisme Architecten

Elevator Platform In Maison Bordeaux By Maarten Van Severen Rem Koolhaas Oma Interior Architecture Unique House Plans Architecture

Elevator Platform In Maison Bordeaux By Maarten Van Severen Rem Koolhaas Oma Interior Architecture Unique House Plans Architecture

A Structural Case Study Of Oma S Maison A Bordeaux Study Architecture Concept Architecture Rem Koolhaas

A Structural Case Study Of Oma S Maison A Bordeaux Study Architecture Concept Architecture Rem Koolhaas

Amenagements Et Rapprochement Avec La Maison De Bordeaux Rem Koolhaas Urbanopole Maquetas Models Rem Koolhaas Bordeaux Architecture

Amenagements Et Rapprochement Avec La Maison De Bordeaux Rem Koolhaas Urbanopole Maquetas Models Rem Koolhaas Bordeaux Architecture

Pin On Maison A Bordeaux

Pin On Maison A Bordeaux

Pin By Neslihan Karasu On Built Building Interior Architecture Residential Design Architecture House

Pin By Neslihan Karasu On Built Building Interior Architecture Residential Design Architecture House

Maison Bordeaux D Alf Arch Architecture Space Architecture Rem Koolhaas

Maison Bordeaux D Alf Arch Architecture Space Architecture Rem Koolhaas

Introduction To The Villa Bordeaux Project One Arch1202 Rem Koolhaas Bordeaux Architecture Drawing Presentation

Introduction To The Villa Bordeaux Project One Arch1202 Rem Koolhaas Bordeaux Architecture Drawing Presentation

Model Study Maison A Bordeaux Oma On Student Show Bordeaux Maison Design

Model Study Maison A Bordeaux Oma On Student Show Bordeaux Maison Design

Maison A Bordeaux By Rem Koolhaas Rem Koolhaas Space Architecture Architecture

Maison A Bordeaux By Rem Koolhaas Rem Koolhaas Space Architecture Architecture

Interior View Maison A Bordeaux By Rem Koolhaas Photography Courtesy Of Petra Blaisse In 2020 Rem Koolhaas Interior Design

Interior View Maison A Bordeaux By Rem Koolhaas Photography Courtesy Of Petra Blaisse In 2020 Rem Koolhaas Interior Design

Pin On Maison Bordeaux

Pin On Maison Bordeaux

La Maison Du Jeudi Maison A Bordeaux Rem Koolhaas Rem Koolhaas Dutch Design Rem

La Maison Du Jeudi Maison A Bordeaux Rem Koolhaas Rem Koolhaas Dutch Design Rem

Oma Maison A Bordeaux Architecture Rem Koolhaas Contemporary Architecture

Oma Maison A Bordeaux Architecture Rem Koolhaas Contemporary Architecture

Pin On O F F I C E

Pin On O F F I C E

Gallery Of Ad Classics Maison Bordeaux Oma 5 Interior Architecture Design Rem Koolhaas Architecture

Gallery Of Ad Classics Maison Bordeaux Oma 5 Interior Architecture Design Rem Koolhaas Architecture

Https Encrypted Tbn0 Gstatic Com Images Q Tbn And9gctpaa4gbb8ok1vz9auf7rtu3wrj5lgefxcpn2glyyqgksge8egb Usqp Cau

Https Encrypted Tbn0 Gstatic Com Images Q Tbn And9gctpaa4gbb8ok1vz9auf7rtu3wrj5lgefxcpn2glyyqgksge8egb Usqp Cau

Maison Bordeaux Latest Gallery Image Of This Property With Maison Bordeaux Stunning La Maison Bordeaux Hotel With Maison Bordea Rem Koolhaas Rem Architecture

Maison Bordeaux Latest Gallery Image Of This Property With Maison Bordeaux Stunning La Maison Bordeaux Hotel With Maison Bordea Rem Koolhaas Rem Architecture

Rem Koolhaas Maison A Bordeaux Nicolas Parnaudeau Rem Koolhaas Interior Architecture Design Architecture

Rem Koolhaas Maison A Bordeaux Nicolas Parnaudeau Rem Koolhaas Interior Architecture Design Architecture

Ad Classics Maison Bordeaux Oma In 2020 Rem Koolhaas Architecture Photography Bordeaux

Ad Classics Maison Bordeaux Oma In 2020 Rem Koolhaas Architecture Photography Bordeaux

Buildings Petebooth Rem Koolhaas Architecture Icons Concept Architecture

Buildings Petebooth Rem Koolhaas Architecture Icons Concept Architecture

Interior View Maison A Bordeaux By Rem Koolhaas Photography Courtesy Of Oma Rem Koolhaas Elevator Design Architecture

Interior View Maison A Bordeaux By Rem Koolhaas Photography Courtesy Of Oma Rem Koolhaas Elevator Design Architecture

Maison Bordeaux Koolhas Koolhas Arquitectura Planos

Maison Bordeaux Koolhas Koolhas Arquitectura Planos

Maison Bordeaux Koolhaas Maison Bordeaux Maison Lemoine Maison

Maison Bordeaux Koolhaas Maison Bordeaux Maison Lemoine Maison

Pin On Maison Bordeaux

Pin On Maison Bordeaux

Ofcharacter Bathroom Design Interior Work Architectural Elements

Ofcharacter Bathroom Design Interior Work Architectural Elements

Pin De Sofii Canero En Koolhaas En 2020 Arquitectura Arquitectonico Rem Koolhaas

Pin De Sofii Canero En Koolhaas En 2020 Arquitectura Arquitectonico Rem Koolhaas

Maison A Bordeaux Rem Koolhaas Bordeaux Rem

Maison A Bordeaux Rem Koolhaas Bordeaux Rem

Ad Classics Maison Bordeaux Oma C Hans Werlemann Rem Koolhaas Residential Design Architecture

Ad Classics Maison Bordeaux Oma C Hans Werlemann Rem Koolhaas Residential Design Architecture

What S So Special About Maison A Bordeaux House Designs Exterior House Front Design Architecture House

What S So Special About Maison A Bordeaux House Designs Exterior House Front Design Architecture House

Maison A Bordeaux Search Results A F A S I A Page 2 In 2020 Architecture Inside Outside Glass Facades

Maison A Bordeaux Search Results A F A S I A Page 2 In 2020 Architecture Inside Outside Glass Facades

Rem Koolhaas Maison A Bordeaux Casa En Burdeos 1994 1998 Rem Koolhaas Architecture Model Architecture

Rem Koolhaas Maison A Bordeaux Casa En Burdeos 1994 1998 Rem Koolhaas Architecture Model Architecture

Oma Maison A Bordeaux France 1998 Architectural Model Architecture Model Concept Architecture Architecture Design

Oma Maison A Bordeaux France 1998 Architectural Model Architecture Model Concept Architecture Architecture Design

For The 2 Nd Project I Swapped To Maison A Bordeaux By Rem Koolhaas Contrary To What You Might Expect I Rem Koolhaas Bordeaux Interior Design Sketches

For The 2 Nd Project I Swapped To Maison A Bordeaux By Rem Koolhaas Contrary To What You Might Expect I Rem Koolhaas Bordeaux Interior Design Sketches

Maison A Bordeaux 1994 Rem Koolhaas Oma Office For Metropolitan Architecture Architecture Rem Koolhaas Rem

Maison A Bordeaux 1994 Rem Koolhaas Oma Office For Metropolitan Architecture Architecture Rem Koolhaas Rem

Maison Bordeaux Bordeaux France By Rem Koolhaas Bordeaux Rem Koolhaas France

Maison Bordeaux Bordeaux France By Rem Koolhaas Bordeaux Rem Koolhaas France

Https Encrypted Tbn0 Gstatic Com Images Q Tbn And9gcsnyney61qkwwdokvf5n Korw8fdoh 1zdxhg Usqp Cau

Https Encrypted Tbn0 Gstatic Com Images Q Tbn And9gcsnyney61qkwwdokvf5n Korw8fdoh 1zdxhg Usqp Cau

Oma Maison A Bordeaux Notice The Vertical Moving Platform Layout Bordeaux Rem Koolhaas

Oma Maison A Bordeaux Notice The Vertical Moving Platform Layout Bordeaux Rem Koolhaas

Maison A Bordeaux Rem Koolhaas In 2020 Innen Aussen Architektur Oma Architecture

Maison A Bordeaux Rem Koolhaas In 2020 Innen Aussen Architektur Oma Architecture

3

3

Source : pinterest.com