Calcul De Charges Et Surcharges En Genie Civil Calcul Genie Civil Plan De Maison Gratuit

Calcul De Charges Et Surcharges En Genie Civil Calcul Genie Civil Plan De Maison Gratuit

Cours Pre Dimensionnement Batiment Et Calcul Descente De Charge Descente De Charge Fondations De Maison Genie Civil

Cours Pre Dimensionnement Batiment Et Calcul Descente De Charge Descente De Charge Fondations De Maison Genie Civil

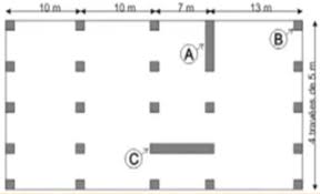
Exemple De Descente De Charges Plan De Maison Gratuit Descente De Charge Lecture De Plan

Exemple De Descente De Charges Plan De Maison Gratuit Descente De Charge Lecture De Plan

Calcul Descente De Charge Maison Bois

Calcul Descente De Charge Maison Bois

Le Monde De Genie Civil Descente De Charges Genies Civilization

Le Monde De Genie Civil Descente De Charges Genies Civilization

Cahier Des Charges Maison Plan Construction Maison Construction Maison Bioclimatique

Cahier Des Charges Maison Plan Construction Maison Construction Maison Bioclimatique

Cahier Des Charges Maison Plan Construction Maison Construction Maison Bioclimatique >

Le Monde De Genie Civil Descente De Charges Descente De Charge Genie Civil Calcul Mur De Soutenement

Le Monde De Genie Civil Descente De Charges Descente De Charge Genie Civil Calcul Mur De Soutenement

Epingle Sur Descente De Charge

Epingle Sur Descente De Charge

Musculation Calcul Des Charges Entrainement Musculation Exercice Musculation Haltere Musculation A La Maison

Musculation Calcul Des Charges Entrainement Musculation Exercice Musculation Haltere Musculation A La Maison

Exemple De Descente De Charges Descente De Charge Lecture De Plan Plan De Maison Gratuit

Exemple De Descente De Charges Descente De Charge Lecture De Plan Plan De Maison Gratuit

Exercice Corrige En Descente De Charge Structural Engineering Autocad Construction Documents

Exercice Corrige En Descente De Charge Structural Engineering Autocad Construction Documents

Classification Des Chevilles Selon Les Charges Et Materiaux Trucs Et Astuces Bricolage Materiaux Tuto Bricolage

Classification Des Chevilles Selon Les Charges Et Materiaux Trucs Et Astuces Bricolage Materiaux Tuto Bricolage

Le Monde De Genie Civil Descente De Charges Descente De Charge Genie Civil Plan Construction Maison

Le Monde De Genie Civil Descente De Charges Descente De Charge Genie Civil Plan Construction Maison

Morceau Choisi Du Pseudo Cahier Des Charges Coin Repas Table Repas Sort

Morceau Choisi Du Pseudo Cahier Des Charges Coin Repas Table Repas Sort

Exemple De Descente De Charges Descente De Charge Lecture De Plan Plan De Maison Gratuit

Exemple De Descente De Charges Descente De Charge Lecture De Plan Plan De Maison Gratuit

Epingle Sur Maison

Epingle Sur Maison

Epingle Sur Gym

Epingle Sur Gym

B L O O D A N D C H A M P A G N E Idee Deco Bar Design De Restaurant Comptoirs En Bois

B L O O D A N D C H A M P A G N E Idee Deco Bar Design De Restaurant Comptoirs En Bois

Exemple De Descente De Charges Descente De Charge Lecture De Plan Genie Civil

Exemple De Descente De Charges Descente De Charge Lecture De Plan Genie Civil

Exemple De Descente De Charges Descente De Charge Lecture De Plan Calcul Beton

Exemple De Descente De Charges Descente De Charge Lecture De Plan Calcul Beton

Epingle Par Ines Querel Sur Etape 4 Cahier Des Charges En 2020 Cahier Des Charges

Epingle Par Ines Querel Sur Etape 4 Cahier Des Charges En 2020 Cahier Des Charges

Exemple De Descente De Charges Construction Documents Id Design How To Plan

Exemple De Descente De Charges Construction Documents Id Design How To Plan

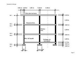
Tableau De Descente De Charge Descente De Charge Lecture De Plan Genie Civil

Tableau De Descente De Charge Descente De Charge Lecture De Plan Genie Civil

Pin On Decor Salon Maison

Pin On Decor Salon Maison

Les Charges Dans Le Batiment House Design House Outdoor Decor

Les Charges Dans Le Batiment House Design House Outdoor Decor

Calcul Charges De Structures Charges D Exploitation Et Charge De Neige Sous Excel Construction Documents How To Plan Genies

Calcul Charges De Structures Charges D Exploitation Et Charge De Neige Sous Excel Construction Documents How To Plan Genies

Monte Charge A Simple Colonne 500 Kg Edph Infowebmanutention Plafonnier Colonnes Simple

Monte Charge A Simple Colonne 500 Kg Edph Infowebmanutention Plafonnier Colonnes Simple

Diy Summer School Ikea Hack Built In Bookcases Avery Street Design Blog Deco Maison Bibliotheque Integre Ikea

Diy Summer School Ikea Hack Built In Bookcases Avery Street Design Blog Deco Maison Bibliotheque Integre Ikea

Pin Auf Decor Salon Maison

Pin Auf Decor Salon Maison

Cahier Des Charges Fonctionnel Methodologie Et Exemples Gratuits Cahier Des Charges Cahier Etude De Faisabilite

Cahier Des Charges Fonctionnel Methodologie Et Exemples Gratuits Cahier Des Charges Cahier Etude De Faisabilite

Epingle Sur Home Shipping Containers

Epingle Sur Home Shipping Containers

Yeityaye Fɪℓℓyes On Instagram D E C O Pour Vos Chambres Chambres Fɪℓℓyes Instagram Pou Small Apartment Bedrooms Bedroom Design Small Room Bedroom

Yeityaye Fɪℓℓyes On Instagram D E C O Pour Vos Chambres Chambres Fɪℓℓyes Instagram Pou Small Apartment Bedrooms Bedroom Design Small Room Bedroom

Menton Madone Proche Carnoles Dans Belle Maison De 1900 A Vendre Appartement En Bon Etat 2 Pieces Expose Sud 37 84 Vendre Appartement Maison Appartement

Menton Madone Proche Carnoles Dans Belle Maison De 1900 A Vendre Appartement En Bon Etat 2 Pieces Expose Sud 37 84 Vendre Appartement Maison Appartement

Gallery Of Maison Sur Le Lac Acdf Architecture 6 House Architecture Design Architecture Architecture Design

Gallery Of Maison Sur Le Lac Acdf Architecture 6 House Architecture Design Architecture Architecture Design

La Descente De Charges Application Exercices Livre Batiment Archi In 2020 Architectural House Plans How To Plan Genies

La Descente De Charges Application Exercices Livre Batiment Archi In 2020 Architectural House Plans How To Plan Genies

Cet Appartement Haussmannien De 69m Situe Au 1er Etage Etait Un 3 Pieces Le Cahier Des Charges Etait De C Appartement Appartement Paris Petite Salle A Manger

Cet Appartement Haussmannien De 69m Situe Au 1er Etage Etait Un 3 Pieces Le Cahier Des Charges Etait De C Appartement Appartement Paris Petite Salle A Manger

Ossature Tiny House France En 2020 Construction Ossature Bois Maison Ossature Bois Tiny House France

Ossature Tiny House France En 2020 Construction Ossature Bois Maison Ossature Bois Tiny House France

Tableau Charge D Exploitation En 2020 Plan De Maison Gratuit Genie Civil Astuces Informatiques

Tableau Charge D Exploitation En 2020 Plan De Maison Gratuit Genie Civil Astuces Informatiques

Architect Charges For Designing A House Remodelingarchitecture Desain Interior Ide Dekorasi Rumah Interior

Architect Charges For Designing A House Remodelingarchitecture Desain Interior Ide Dekorasi Rumah Interior

Monte Charge A Colonnes D Adc France Tables De Decoupe Amenagement Garage Idees Pour La Maison

Monte Charge A Colonnes D Adc France Tables De Decoupe Amenagement Garage Idees Pour La Maison

Delaitreimmobilier Decoration Maison Vendre Appartement Appartements Studio

Delaitreimmobilier Decoration Maison Vendre Appartement Appartements Studio

C Est Quoi Un Cahier Des Charges De Construction De Maison Construction Maison Maison Bioclimatique Cahier Des Charges

C Est Quoi Un Cahier Des Charges De Construction De Maison Construction Maison Maison Bioclimatique Cahier Des Charges

A Room With A View Ever Dreamed Of What Your Perfect Room Would Look Like We Have Some Ide Modele Architecture Architecture D Interieur Maison Sur La Cascade

A Room With A View Ever Dreamed Of What Your Perfect Room Would Look Like We Have Some Ide Modele Architecture Architecture D Interieur Maison Sur La Cascade

Terrific Free Of Charge Stone Fireplace Exterior Style En 2020 Cheminee Design Decor Salon Maison Maison Design

Terrific Free Of Charge Stone Fireplace Exterior Style En 2020 Cheminee Design Decor Salon Maison Maison Design

A Natural Roof Top Is Typically A Roof That S Were Taught In Crops Which Lessens Stormwater Run Off And Les Interieur Maison Design Maison Ecologique Kerterre

A Natural Roof Top Is Typically A Roof That S Were Taught In Crops Which Lessens Stormwater Run Off And Les Interieur Maison Design Maison Ecologique Kerterre

Pin On Picoftheday

Pin On Picoftheday

Pin On Decoration Fete

Pin On Decoration Fete

Miniature Cabinet Dollhouse Furniture Dollhouse Bathroom Miniature Furniture Dollhouse Bookca Dollhouse Furniture Miniature Furniture Dolls House Interiors

Miniature Cabinet Dollhouse Furniture Dollhouse Bathroom Miniature Furniture Dollhouse Bookca Dollhouse Furniture Miniature Furniture Dolls House Interiors

The Life Port Solar Solar Carport Kit Created By Envision Creates Electricity For Homes And Also Charges Electric Vehicles Design Moderne Idees Pour La Maison

The Life Port Solar Solar Carport Kit Created By Envision Creates Electricity For Homes And Also Charges Electric Vehicles Design Moderne Idees Pour La Maison

Exemple De Descente De Charges Descente De Charge Devis Batiment Cours Genie Civil

Exemple De Descente De Charges Descente De Charge Devis Batiment Cours Genie Civil

Source : pinterest.com